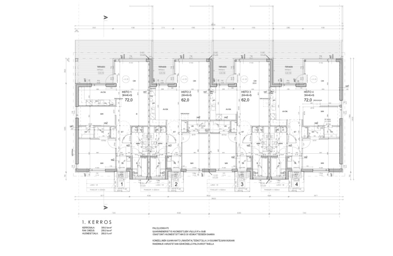
Pulmusuonpuisto

Copyright © Työhuone Arch+ 2018